Italiano
English
45.000 €

3 LOCALI DA RISTRUTTURARE - GALLIATE

Appartamento in vendita • Galliate - VIA PIETRO CUSTODI, 2
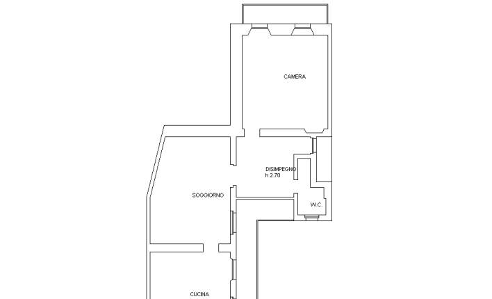
In un contesto di corte nel cuore del centro storico, proponiamo appartamento da ristrutturare di tre locali più servizi, al secondo ed ultimo piano.
L'immobile gode di una posizione privilegiata, con un affaccio suggestivo su Piazza Castello, offrendo un panorama unico che unisce fascino storico e atmosfera locale.
Perfetto come investimento, l'appartamento si trova in una posizione strategica, comoda per tutti i principali servizi e a pochi passi da un pratico parcheggio sotterraneo. Il tetto, recentemente rifatto è in ottime condizioni, garantisce ulteriore tranquillità per chi desidera acquistare senza preoccupazioni strutturali.
Con un prezzo competitivo, questa soluzione rappresenta un'opportunità imperdibile per chi ricerca un investimento sicuro in una delle zone più ambite della città.
Caratteristiche principali
Codice
V001785
Città
Galliate
Categoria
Appartamento
Prezzo
45.000 €
Locali
3
Camere
2
Bagni
1
Mq
94
Balconi
1
Classe energetica
G
Stato Immobile
Da Ristrutturare
Grado
Economico
Posizione
Centro
Panorama
Vista Monumento
Orientamento
Sud Nord
Lati Liberi
2
Giardino
No
Arredi
Non Arredato
Tipo Impianto
No
Infissi
Legno
Serramenti
Da Sostituire
Persiana
Persiana Legno
Pavim. Giorno
Graniglia

Accessori: Passaggio Pedonale

Mappa
VIA PIETRO CUSTODI 2, Galliate (NO)
Agenti venditori
Misics Eleonora
Misics Eleonora
+39 338 5445058
Richiedi informazioni
Invia
Condividi su
Cookie preference